Warning: SessionHandler::read(): open(/var/www/100500kotlov.ru/data/mod-tmp/sess_781295e4113ff07e95d64834c389c3c8, O_RDWR) failed: No space left on device (28) in /var/www/100500kotlov.ru/data/www/kotlom.ru/vendor/symfony/http-foundation/Session/Storage/Proxy/SessionHandlerProxy.php on line 59
Топка ТРПК-2-1330/1525 купить в Уфе | Цена производителя
В наличии на складе

Топка ТРПК-2-1330/1525

Цена
Цена по запросу
Доставляем Топки котлов
в г. Уфа

Кратко о характеристиках

Марка ТРПК-2-1330/1525
Вид топкиПолумеханическая РПК
ТопливоБурый уголь
Тип ТРПК

Топочное устройство серии ТРПК-2-1330/1525 обладает неполной механизацией процесса сжигания топлива. Такая топка может быть использована для работы в стационарных и модульных котельных.

Характеристики

Потери тепла от химического недожога, не более, %
2
Потери тепла от механического недожога, %
13
Влажность топлива, не более, %
40
Зольность топлива, не более, %
35
Содержание мелочи (0-6 мм), не более, %
60
Максимальный размер куска, мм
40
Ширина колосниковой решетки, мм
1330
Длина колосниковой решетки, мм
1525
Масса, кг
2950
Марка
ТРПК-2-1330/1525
Вид топки
Полумеханическая РПК
Топливо
Бурый уголь, Каменный уголь, Антрацит
Диапазон изменения нагрузки, %
25-100
Коэффициент избытка воздуха за топкой, не более
1,4-1,7
Активная площадь колосниковой решетки, м²
2,02
Тип
ТРПК
Цена, руб.
Топка котла КВм
Тип топки Механическая
Комплект
Топка ТРПК-2-1330/1525
Топка ТРПК-2-1330/1525
1 штука
Привод ПТБ-1200
Привод ПТБ-1200
1 штука
Редуктор РТ-3000
Редуктор РТ-3000
1 штука
Как все происходит
на видео
Смотреть видео галерею
Возникли
вопросы?
Закажите консультацию
Или позвоните
8 (800) 551-45-60
Ответим на вопросы
Расскажем о скидках
Презентуем товар
Поможем выбрать
Доставляем Топки котлов
в г. Уфа

Устройство и принцип работы

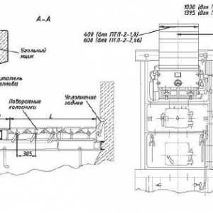
Полумеханическая топка ТРПК-2-1330/1525 состоит из колосниковой поворотной решетки, пневматического питателя и ручного привода. Под решеткой находится бункер для сбрасывания шлака. Процесс очистки происходит вручную путем поворота решетки. Система регулирования процесса горения происходит, так же, вручную. Для этого решетка оснащена заслонками, которые открываются и закрываются по мере необходимости.

В зависимости от размеров решетки, она может состоять из одной или двух секций. Это способствует бесперебойному процессу горения топлива.

Особенности и преимущества:

    • Бесперебойный процесс горения;
    • Частичная автоматизация процесса;
    • Экономичность;
    • Простота использования;
    • Легкость монтажа.

    Установка

    Процесс монтажа топливного оборудования типа ТРПК-2-1330/1525 должен осуществляться исключительно профессиональными специалистами. При установке конструкции необходимо руководствоваться требованиями, прописанными в «Правилах устройства и безопасной эксплуатации паровых и водогрейных котлов».

    Схемы и чертежи
    Следите за новостями в социальных сетях
    Наши цифры
    скажут за нас все
    10
    Срок эксплуатации оборудования – более десяти лет
    20
    Двадцать лет
    трудимся для вас
    10
    Меньше десяти дней
    на изготовление товара
    500
    Более пятисот
    точек поставки
    Вы смотрели